RECUPERO FUNZIONALE EDIFICIO OTTOCENTESCO

  • Ubicazione:  Via Bligny angolo Via Giulio - Torino
  • Committente: Cooperative I.C.S. - Associazione Ellea
  • Dimensioni: 1.450 mq
  • Data: 2006- 2007
  • Gruppo di lavoro: prof. arch. Giovanni Torretta, arch. Claudio Perino, arch. Alessio Gotta

RECUPERO FUNZIONALE DI EDIFICIO OTTOCENTESCO PER LA REALIZZAZIONE DI UN CIRCOLO CULTURALE (GIA' ASILO NIDO E  UNA COMUNITA' ASSISTITA PER DISABILI GRAVI) ED UNA COMUNITA' SOCIO ASSISTENZAIALE PER IL RECUPERO SOCIALE

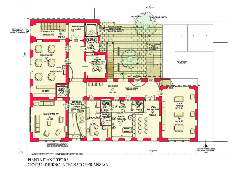
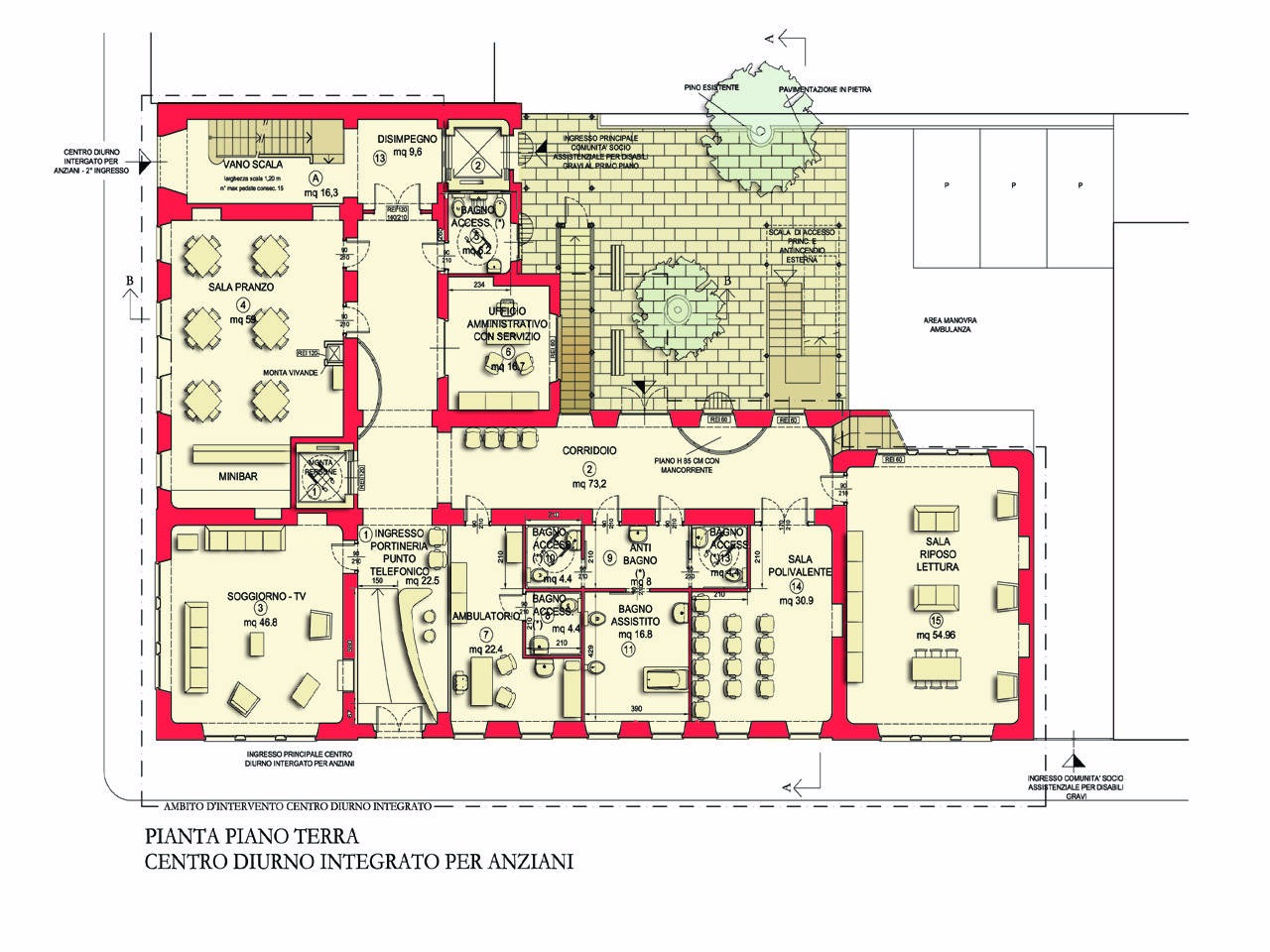
Il complesso edilizio di cui in oggetto è situato in via Bligny 18 angolo via Giulio 17 in Torino. L’edificio ha pianta a “L” e si erge a due piani fuori terra su interrato.

Il progetto ha previsto il mutamento d’uso dell’intero complesso edilizio da edificio per l’istruzione (scuola) a presidio socio assistenziale e nello specifico, per quanto riguarda il piano terreno e parte del piano seminterrato, a centro diurno integrato per anziani, una struttura semi-residenziale che assiste anziani parzialmente non autosufficienti, attuando programmi riabilitativi e socializzanti mediante l’insieme combinato di prestazioni sanitarie e socio- assistenziali con una capacità ricettiva massima di 25 utenti e si articola, sotto il profilo funzionale, in servizi collettivi, servizi generali e servizi sanitari. La destinazione d'uso per l’intero primo piano, è una comunità socio assistenziale.

Si tratta di una struttura con funzioni di bassa intensità assistenziale e bassa complessità organizzativa, con una capacità ricettiva pari a 10 utenti, oltre a 2 posti letto per la pronta accoglienza. I destinatari sono quindi persone adulte, prive dei familiari di sostegno e in situazione di compromissione funzionale con limitata autonomia, richiedenti interventi sanitari non continuativi, che necessitano di assistenza e di sostegno nella vita quotidiana.

Il progetto è stato redatto in conformità a quanto prescritto dalla normativa regionale vigente e nello specifico ai sensi della D.G.R: n 37 – 29527 del 01.03.2000 e s.m.i.

A lavori ultimati ed in fase di accreditamento della struttura presso la Regione è emersa la necessità di trasformare il piano terreno ed interrato da Centro Diurno per Anziani, in Asilo Nido al piano terreno e Centro Diurno Terapeutico per la riabilitazione sociale.

Sono pertanto state adempiute tutte le procedure burocratice ed alcune ulteriori opere edili per l'adeguamento dell'edificio a questo nuovo ed ulteriore uso.

Recentemente gli spazi del piano terreno vengo utilizzati da un circolo culturale per l'organizzazione di eventi.

Indirizzo

Virtual Image
Via Andrea Massena, 16
10128 - Torino  - Italy

Contatti

Email: info@virtual-image.it
Phone: +39 011.38.28.146
Fax: +39 011.53.60.925

Collegamenti

www.virtual-image.it